CENTRALNA
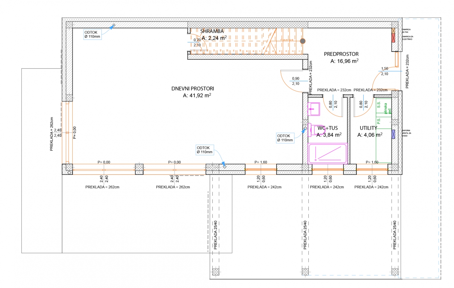
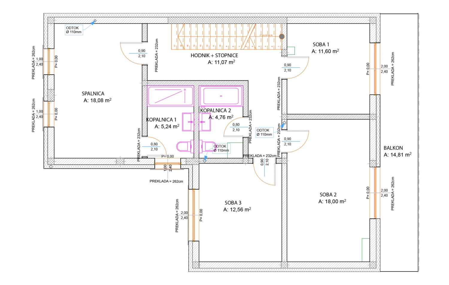
Sredinsko vrstno hišo odlikuje nekoliko večja kvadratura, saj nadstrešek kot ločnica med dvema hišama ponuja možnost pokritega parkirnega mesta, medtem ko je sama lega skupaj z razporeditvijo prostorov povsem enaka kot pri Severnici in Južnici.
Hiše so zgrajene do tretje podaljšane gradbene faze, ki vključuje konstrukcijska gradbena dela v vseh etažah, stavbno pohištvo (okna in zunanja vrata), krovska dela, toplotno izolacijsko fasado in ureditev okolice. V takšni fazi dograjenosti se tudi prodajajo.
Velikost
165 m²
Zemljišče
206 m²
Dograjenost
3. podaljšana gradbena faza
Cena
PRODANO


