SEVERNICA
Prva vrstna hiša v nizu treh leži na severni strani, a se vanjo, kot pri ostalih dveh, vstopa z vzhodne strani, kamor je umeščena tudi balkonska loža. V primerjavi s to ima osrednji bivalni prostor s panoramskimi stenami zahodno lego.
Hiše so zgrajene do tretje podaljšane gradbene faze, ki vključuje konstrukcijska gradbena dela v vseh etažah, stavbno pohištvo (okna in zunanja vrata), krovska dela, toplotno izolacijsko fasado in ureditev okolice. V takšni fazi dograjenosti se tudi prodajajo.
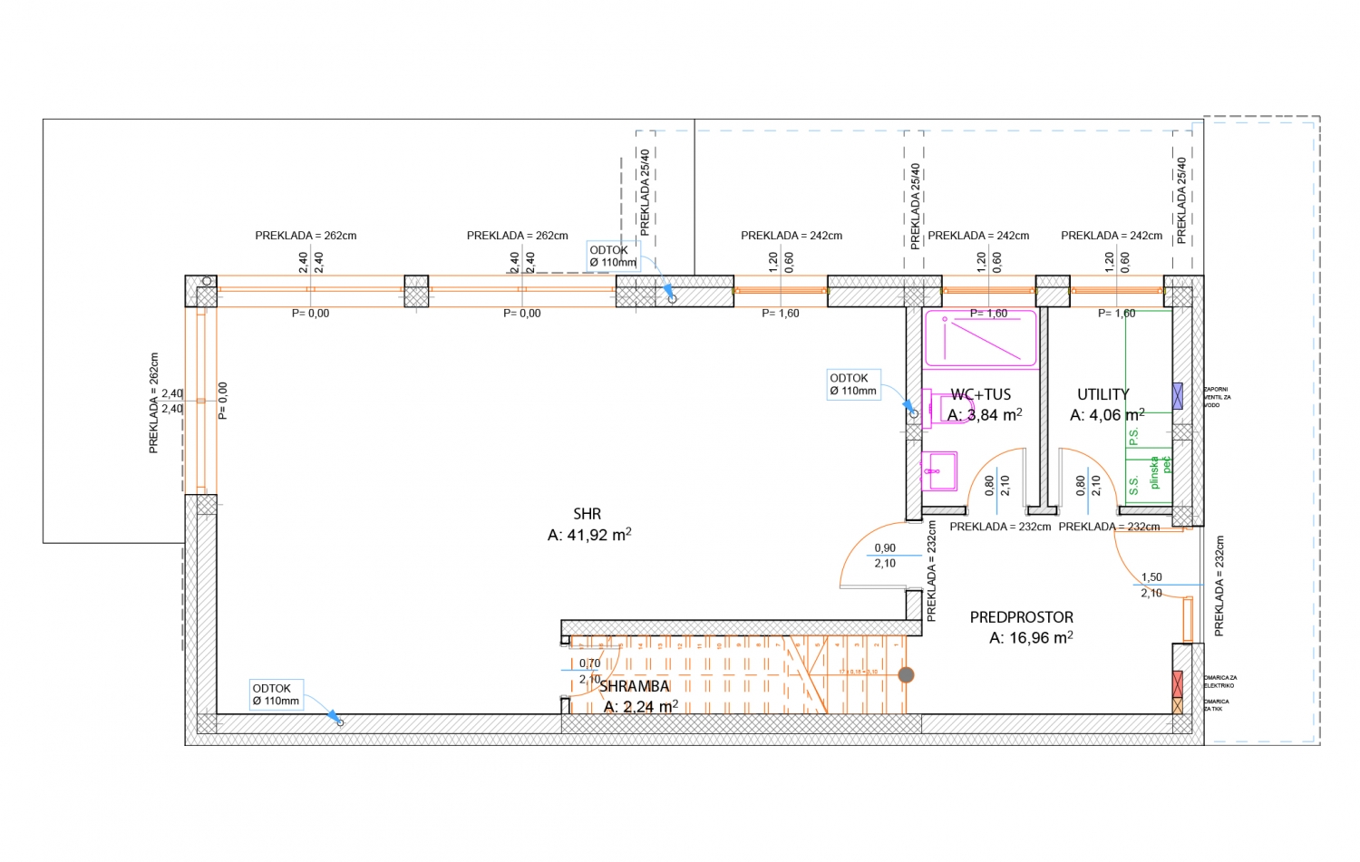
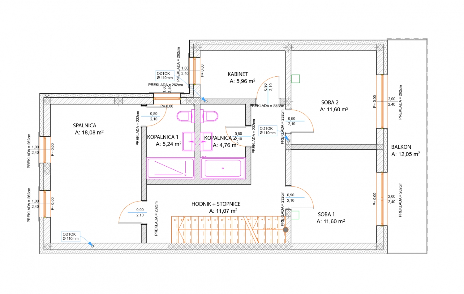
Velikost
149 m²
Zemljišče
296 m²
Dograjenost
3. podaljšana gradbena faza
Status
PRODANO


