JUŽNICA
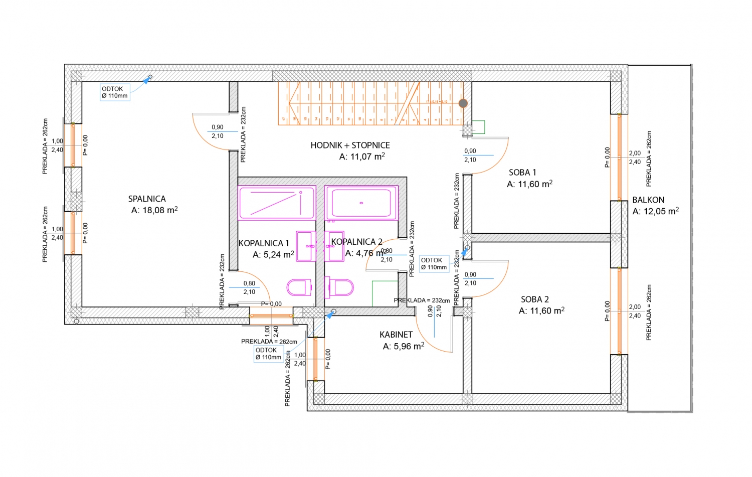
Tudi zadnja vrstna hiša, ležeča na južni strani, zajema v pritličnem prostoru odprt dnevni prostor s kuhinjo, predprostor, manjšo shrambo, toaleto in utiliti ter v nadstropju stopnišče s hodnikom, spalnico, dve sobi, kabinet in dve kopalnici.
Hiše so zgrajene do tretje podaljšane gradbene faze, ki vključuje konstrukcijska gradbena dela v vseh etažah, stavbno pohištvo (okna in zunanja vrata), krovska dela, toplotno izolacijsko fasado in ureditev okolice. V takšni fazi dograjenosti se tudi prodajajo.
Velikost
149 m²
Zemljišče
240 m²
Dograjenost
3. podaljšana gradbena faza
Status
PRODANO


